La casa mobile The Heat della Anderson Mobile Estates con sede nelle Florida Keys (Anderson Mobile Estates.com)
La Anderson Mobile Estates ha rivoluzionato il modo di vivere e lavorare di molti attori, registi, cantanti e uomini d'affari che per lavoro sono costretti a continui spostamenti (Anderson Mobile Estates.com)
Disposta su due piani, The Heat è dotata di tutti i comfort di un albergo a 5 stelle (Anderson Mobile Estates.com)
Ron Anderson progetta e costruisce autobus di lusso per il mondo dello spettacolo da oltre 35 anni (Anderson Mobile Estates.com)
Oltre a The Heat è possibile scegliere tra altri 7 modelli, tutti di altissima gamma (Anderson Mobile Estates.com)
Oltre alle stanze da letto e alla cucina completa, The Heat è dotata di zona soggiorno e sala conferenze (Anderson Mobile Estates.com)
Uno dei primi acquirenti di The Heat è stato Silvester Stallone. Tra i clienti della Anderson Estates ci sono Will Smith, Vin Diesel, Brad Pitt, Jim Carrey, Denzel Washington, Harrison Ford, Adam Sandler, Charlie Sheen, Richard Gere, Jennifer Lopez, Sharon Stone, Micky Rourke, Shakira, New Kids on the Block, Bill Clinton... (Anderson Mobile Estates.com)
L'archtetto e designer Dymitr Malcew vive a Singapore ed è specializzato nella progettazione di spazi residenziali e commerciali
La casa galleggiante è stata progettata per persone che amano la libertà e la natura, ma senza rinunciare a lusso e comfort
Altissimi livelli di design e innovazione tecnologica caratterizzano la floating house di Malcew
I materiali utilizzati possono essere personalizzati a seconda delle esigenze del cliente. Con un punto fermo: l'attenzione alla sostenibilità
La Floating House può essere facilmente ormeggiata in un porto o un molo
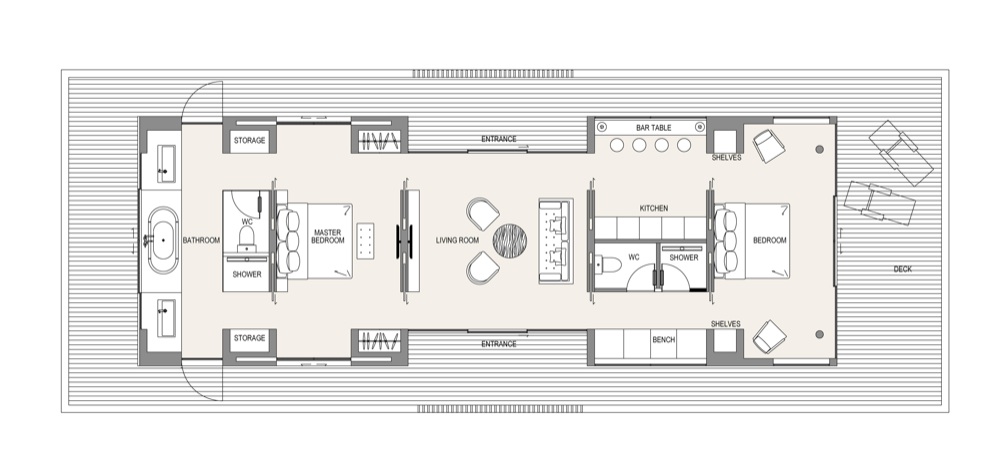
Ogni abitazione è dotata di due camere da letto, salone, cucina, due bagni e un’ampia terrazza
Viaggiare. Ma portando con sé ogni comfort. Per terra e per mare: come a casa, ovunque
La casa mobile The Heat della Anderson Mobile Estates con sede nelle Florida Keys (Anderson Mobile Estates.com)
1 / 13
casa mobile
La Anderson Mobile Estates ha rivoluzionato il modo di vivere e lavorare di molti attori, registi, cantanti e uomini d’affari che per lavoro sono costretti a continui spostamenti (Anderson Mobile Estates.com)
2 / 13
casa mobile
Disposta su due piani, The Heat è dotata di tutti i comfort di un albergo a 5 stelle (Anderson Mobile Estates.com)
3 / 13
casa mobile
Ron Anderson progetta e costruisce autobus di lusso per il mondo dello spettacolo da oltre 35 anni (Anderson Mobile Estates.com)
4 / 13
casa mobile
Oltre a The Heat è possibile scegliere tra altri 7 modelli, tutti di altissima gamma (Anderson Mobile Estates.com)
5 / 13
casa mobile
Oltre alle stanze da letto e alla cucina completa, The Heat è dotata di zona soggiorno e sala conferenze (Anderson Mobile Estates.com)
6 / 13
casa mobile
Uno dei primi acquirenti di The Heat è stato Silvester Stallone. Tra i clienti della Anderson Estates ci sono Will Smith, Vin Diesel, Brad Pitt, Jim Carrey, Denzel Washington, Harrison Ford, Adam Sandler, Charlie Sheen, Richard Gere, Jennifer Lopez, Sharon Stone, Micky Rourke, Shakira, New Kids on the Block, Bill Clinton… (Anderson Mobile Estates.com)
7 / 13
casa mobile
L’archtetto e designer Dymitr Malcew vive a Singapore ed è specializzato nella progettazione di spazi residenziali e commerciali
8 / 13
floating house
La casa galleggiante è stata progettata per persone che amano la libertà e la natura, ma senza rinunciare a lusso e comfort
9 / 13
casa galleggiante
Altissimi livelli di design e innovazione tecnologica caratterizzano la floating house di Malcew
10 / 13
casa galleggiante
I materiali utilizzati possono essere personalizzati a seconda delle esigenze del cliente. Con un punto fermo: l’attenzione alla sostenibilità
11 / 13
casa galleggiante
La Floating House può essere facilmente ormeggiata in un porto o un molo
12 / 13
casa galleggiante
Ogni abitazione è dotata di due camere da letto, salone, cucina, due bagni e un’ampia terrazza
13 / 13
casa galleggiante
Viaggiare con tutte le comodità di casa, un lusso possibile: The Heat, di Anderson Mobile Estates, è una villa a due piani su ruote, ottima alternativa all’albergo per girare il mondo con stile. A bordo di questa abitazione a 5 stelle ci sono camere spaziose, sala per conferenze, uffici, zona soggiorno e cucina completa. The Heat è rivestito con materiali pregiati, dalla pelle, al legno di quercia al marmo. Molto amato da attori, cantanti e businessmen costretti a muoversi continuamente per lavoro, questa casa di lusso su ruote viene spesso utilizzata anche sui set cinematografici allestiti lontani dai centri urbani. Location perfetta anche per parties e serate danzanti.
Meno mobile ma comunque trasportabile, invece, la casa galleggiante creata dal designer Dymitr Malcew si ormeggia ovunque facilmente. Tutte le stanze interne consentono l’accesso diretto al terrazzo intorno al perimetro, mentre le pareti in vetro garantiscono una perfetta fusione con l’ambiente circostante. La base della ‘floating house’ è costruita su una piattaforma galleggiante e può essere facilmente spostata da un luogo all’altro. Inoltre, la disposizione interna della casa, i materiali e le finiture possono essere personalizzati a seconda dei gusti e delle esigenze del cliente.